01 Neden Bulmaca
Devre kartı tasarlandıktan sonra bileşenlerin SMT çip montaj hattına yerleştirilmesi gerekir. Her SMT işleme fabrikası, montaj hattının işleme gereksinimlerine göre devre kartının en uygun boyutunu belirleyecektir. Örneğin, boyut çok küçük veya çok büyük ve montaj hattı sabit. Devre kartının donanımı düzeltilemez.
O zaman şu soru ortaya çıkıyor: Peki ya devre kartımızın boyutu fabrika tarafından verilen boyuttan daha küçükse? Yani, bir devre kartını bir araya getirmemiz ve birden fazla devre kartını tek bir parça halinde birleştirmemiz gerekiyor. Montaj, hem yüksek hızlı yerleştirme makineleri hem de dalga lehimleme için verimliliği önemli ölçüde artırabilir.
02 Bulmaca Açıklaması
○ Boyutlar
A. İşleme kolaylığı açısından kaplama tahtası açısı veya zanaat kenarı R tipi pah olmalıdır. Genel olarak yuvarlatılmış köşe çapı Φ5'tir.
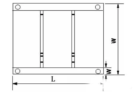
B. Kart boyutu 100mm × 70mm'den küçük olduğunda PCB monte edilmelidir (bkz. Şekil 3.1).
Bulmacanın boyut gereksinimleri:
Uzunluk L: 100mm ~ 400mm
Genişlik G: 70mm ~ 400mm
○ Düzensiz PCB
Düzensiz şekilli ve aparatsız PCB'lerin el işi kenarları olmalıdır. PCB'de 5mm × 5mm veya daha büyük delikler varsa, lehimlemeyi ve lehimleme sırasında kartın deformasyonunu önlemek için deliklerin tasarım sırasında tamamlanması gerekir. Tamamlayıcı parça ve orijinal PCB parçası bir tarafta olmalıdır Dalga lehimlemeden sonra bağlayın ve çıkarın (bkz. Şekil 3.2)
Proses kenarı ile PCB arasındaki bağlantı V şeklinde bir oluk olduğunda, cihazın dış kenarı ile V şeklindeki oluk arasındaki mesafe ≥2 mm'dir; Proses kenarı ile PCB arasındaki bağlantı bir damga deliği olduğunda, cihazların ve hatların damga deliğinin çevresinde 2 mm'lik bir mesafe içinde düzenlenmesine izin verilmez.
○ Bulmaca
Dekupaj testeresinin yönü, taşıma kenarının yönüne paralel olarak tasarlanmalıdır. Boyutun, yüklemenin boyutuna ilişkin yukarıdaki gereklilikleri karşılayamaması bir istisnadır. Genellikle “V-CUT” veya damga deliği çizgisi sayısı ≤ 3 gerektirir (ince kaplamalar hariç), bkz. Şekil 3.4
Özel şekilli kart için, ek kart ile ek kart arasındaki bağlantıya dikkat edin ve bağlantıyı Şekil 3.5'te gösterildiği gibi her adımda bir hat üzerinde ayırarak yapmaya çalışın.
03 pcb bulmaca dikkat edilmesi gereken ilk on konu
Normal şartlarda PCB üretimine Panelizasyon (Panelizasyon) işlemi adı verilecek, amaç SMT üretim hattının üretim verimliliğini arttırmaktır, sonrasında PCB PCB, hangi detaylara dikkat etmeliyiz? Gelin birlikte göz atalım.
1. PCB yapbozunun dış çerçevesi (sıkıştırma kenarı), PCB yapbozunun fikstür üzerine sabitlendikten sonra deforme olmayacağından emin olmak için kapalı döngü tasarımını benimsemelidir.
2. PCB bulmacasının şekli mümkün olduğunca kareye yakındır. 2 × 2, 3 × 3,… kullanılması tavsiye edilir.
3. PCB panel genişliği ≤260mm (SIEMENS hattı) veya ≤300mm (FUJI hattı); otomatik dağıtım gerekiyorsa, PCB panel genişliği × uzunluk≤125mm × 180mm.
4. PCB bulmacasındaki her küçük kartta en az üç konumlandırma deliği bulunmalıdır, 3 ≤ açıklık ≤ 6 mm, kenar konumlandırma deliklerinin 1 mm'si dahilinde kablolama veya yama yapılmasına izin verilmez.
5. Küçük plakalar arasındaki merkez mesafesi 75mm ~ 145mm arasında kontrol edilir.
6. Referans konumlandırma noktasını ayarlarken genellikle konumlandırma noktasından 1,5 mm daha büyük lehimsiz bir alan bırakın.
7. Yapbozun dış çerçevesi ile iç küçük tahta arasındaki ve küçük tahta ile küçük tahta arasındaki bağlantı noktalarının yakınında büyük cihazlar veya çıkıntılı cihazlar bulunmamalı ve bulmacanın dış çerçevesi ile küçük tahta arasında 0,5 mm'den fazla boşluk olmalıdır. Kesici takımın normal şekilde çalışmasını sağlamak için bileşenlerin ve PCB'nin kenarları.
8. Panelin dış çerçevesinin dört köşesinde dört konumlandırma deliği açılmıştır ve delik çapı 4 mm ± 0,01 mm'dir; Üst ve alt plakalar sırasında kırılmaması için deliğin mukavemeti orta düzeyde olmalıdır. .
9. PCB konumlandırma ve ince aralıklı cihaz konumlandırma için kullanılan referans sembolleri. Prensip olarak, aralığı 0,65 mm'den az olan QFP'ler çapraz konumlarına ayarlanmalıdır; PCB ek kartlarının yerleştirilmesi için kullanılan konumlandırma referans sembolleri eşleştirilmelidir. Kullanın, konumlandırma elemanına çapraz olarak yerleştirin.
10. Büyük bileşenler, G / Ç arayüzüne, mikrofona, pil arayüzüne, mikroya odaklanan konumlandırma direklerine veya konumlandırma deliklerine sahip olmalıdır.anahtar, kulaklık arayüzü, motor vb.









